• Наличие
    В наличии
Цена по запросу

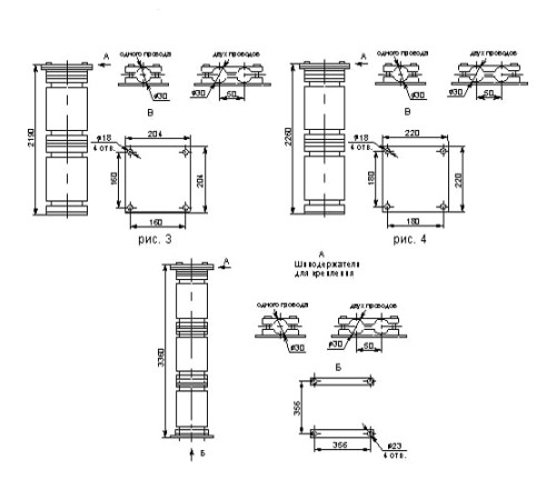
Шинные опоры ШО 150 и ШО 220 предназначены для изоляции и крепления шин распределительных устройств подстанций и электростанций на номинальное напряжение 150 кВ и 220 кВ. Они обеспечивают надёжную изоляцию токоведущих частей от земли и между разными фазами.

Использование данных опор повышает безопасность и надежность работы электроустановок, предотвращая короткие замыкания и обеспечивая стабильность электроснабжения. Изделия отличаются высокой механической прочностью и устойчивостью к воздействию окружающей среды.

Ключевые характеристики включают длину пути утечки (1,5 м и 2,25 м) и различную массу (от 128 кг до 267 кг), что позволяет подобрать оптимальное решение для конкретных проектных условий. Продукция соответствует всем требованиям ГОСТ и ТУ.

Мы предлагаем широкий модельный ряд, включающий марки ШО 150 Б1, ШО 150 У1, ШО 220 Б Т1, ШО 220 Б У1, ШО 220 Т1, ШО 220 У1. Возможен онлайн-заказ и получение коммерческого предложения для юридических лиц.

Отзывов: 0

Нет отзывов об этом товаре.

Вопросов: 0

Пока нет вопросов об этом товаре. Станьте первым!